МД45
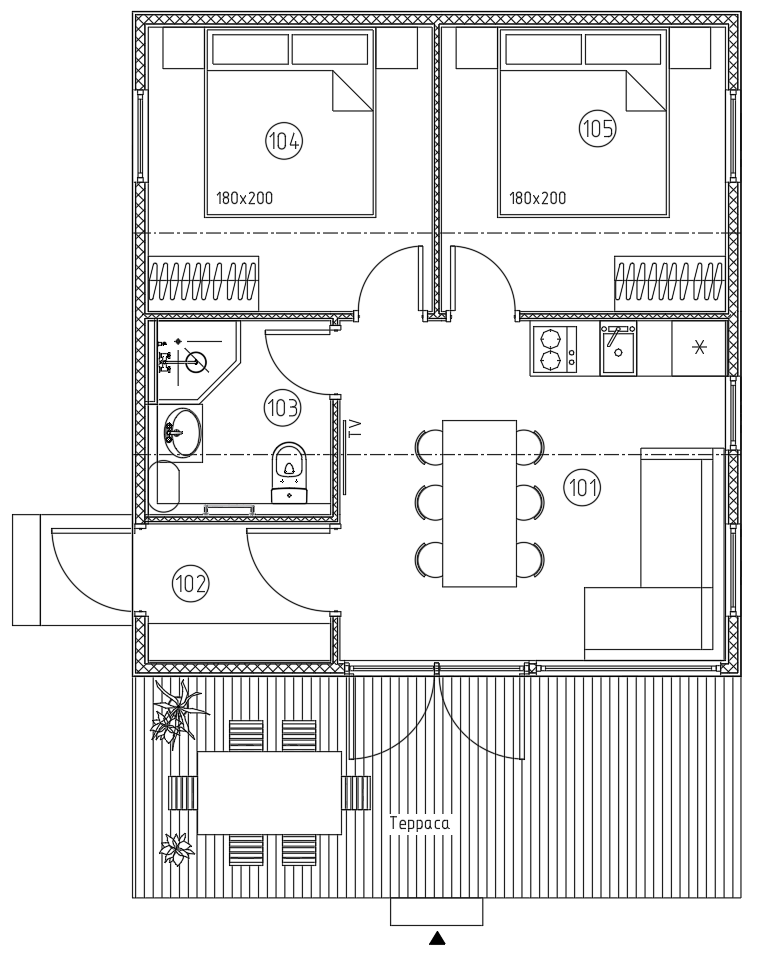
Экспликация помещений на отм.0.00
| Номер помещения | Наименование | Площадь, м |
|---|---|---|
| 101 | Гостиная с кухней | 15.4 |
| 102 | Тамбур-прихожая | 2.9 |
| 103 | Санузел | 4.2 |
| 104 | Спальная | 9.5 |
| 105 | Спальная | 9.5 |
| Общая площадь помещений | 41.5 | |
| Площадь здания* | 47.5 |
Стоимость: от 155 000₽/кв.м без НДС
Комплектация
Конструктив
Модульный мобильный дом состоит из нескольких отдельно транспортируемых модулей.
Конструкция каждого модуля состоит из сварного силового каркаса, выполненного методом сварки, на который нанесено антикоррозионное покрытие
Модули стыкуются между собой на месте установки здания, и здание подключается к имеющимся коммуникациям.
Модули поставляются на объект в полной заводской готовности
Отделка фасада
Снаружи каркаса устанавливается наружная обшивка
из OSB3 листа толщиной 12 мм, окрашивается
специальным грунтом-краской и монтируется
декоративная отделка деревянным планкеном для
придания эстетического внешнего вида
Остекление
Оконные переплеты из утепленных ПВХ профилей, с
остеклением двухкамерным стеклопакетом, с
открываемыми створками.
Входная группа
Дверной блок наружный, из утепленных ПВХ профилей
с остеклением двухкамерным стеклопакетом. С
устройством запирания на ключ.
Внутренние двери
Дверные блоки с наличниками и фурнитурой, с
устройствами запирания изнутри помещений
Теплоизоляция
Стены: теплоизоляция из плит на основе
базальтового волокна -100мм + деревянная
отделка внутри и снаружи
Крыша: теплоизоляция из плит на основе
базальтового волокна -200мм
Полы: теплоизоляция из плит на основе
базальтового волокна и XPS плит -100мм
Под наружной отделкой монтируется
ветрозащитное покрытие, под внутренней
отделкой пароизоляционная мембрана
Гидроизоляция
На силовой каркас крыши сверху монтируется
сплошная гидроизоляция для исключения
попадания влаги в конструкцию здания
На полу модуля поверх силовой обрешетки
основания, смонтировано выравнивающее
покрытие из цементно-стружечных плит или
стяжки и отделано влагостойким ламинатом или
керамической плиткой
Во влажных помещениях предусмотрена
дополнительная гидроизоляция
Отопление
Теплые полы в мокрых зонах с датчиком и регулировкой
температуры
Электрические радиаторы отопления с регулировкой
температуры
Охлаждение
Сплит система кондиционирования с системой
управления
Водоснабжение и канализация
Скрытый монтаж систем водоснабжения и канализации
Предусмотрены выводы в местах подключения внешних
инженерных систем
Электрика
Скрытый монтаж систем электроснабжения
Установлены розетки и выключатели
Установлены внешний и внутренний щиты управления
электроснабжением
Слаботочные системы
Установлены скрытые трассы под кабели ТВ и Интернет
Пожарная безопасность
Установлены пожарные оповещатели
Модульные мобильные дома комплектуется средствами
пожаротушения – ОП
Мебель
Гостиная: диван, стол обеденный, стулья
обеденные, гардеробный шкаф
Спальня: кровать, матрас, шкаф
Во всех комнатах уставлены карнизы и гардины
Сантехническое борудование
Душевая кабина с поддоном и с душевой системой
Раковина
Унитаз в сборе, с сиденьем микролифт
Мебель для санузла
Зеркало с подсветкой
Полотенцесушитель (электрический)
Водонагреватель
Кухонное оборудование
Кухонный гарнитур с мойкой
Варочная плита
СВЧ-печь
Холодильник
Освещение
Установлены внутренние осветительные приборы
Установлена уличная подсветка фасада










